Festhalle Nieder-Olm - die Festhalle
Zahlen • Daten • Fakten
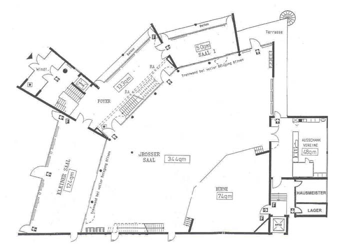
Die Ludwig-Eckes Halle im Detail,
Die Nieder-Olmer Festhalle ist schon wegen ihrer Lage zwischen zwei großen Parkplätzen eine Besonderheit in unserer Region. Von beiden Autobahnanschlussstellen kommt man ohne die Innenstadt zu tangieren, auf die Parkflächen in unmittelbarer Nähe. Die Halle ist mit ihren 344m² Zuschauerraum, und Möglichkeit Zwischenwände zu verschieben so groß, dass man stehend bis 1000 Personen unterbringen kann. Durch ein großes Foyer ist es möglich den Getränkeverkauf außerhalb des Zuschauerraums zu bewerkstelligen! Die Bühne hat eine Fläche von 74m². Zur Bühne gehören Garderoben mit WC und Dusche im Untergeschoß. Für unsere Zwecke ist die Halle Ideal. Konzerte, Tanzveranstaltungen und Comedy/ Cabaret u.s.w.







